物件特色
this is a truly unique and rare opportunity, offering endless possibilities for development or a dream home. nestled in the picturesque foothills of evergreen, colorado, this 15-acre property provides a blend of natural beauty, convenience, and potential for growth.
the property consists of 10 acres zoned pd (planned development), with an approved official development plan for 18 single-family lots. this stunning enclave features towering pine, spruce, and fir trees, creating the ideal setting for a residential development. it offers the perfect canvas for builders or developers to bring their vision to life, creating a vibrant community that will seamlessly integrate with the natural surroundings. the development will be serviced with public water and sewer, along with natural gas and electricity from xcel energy, making it an even more attractive project.
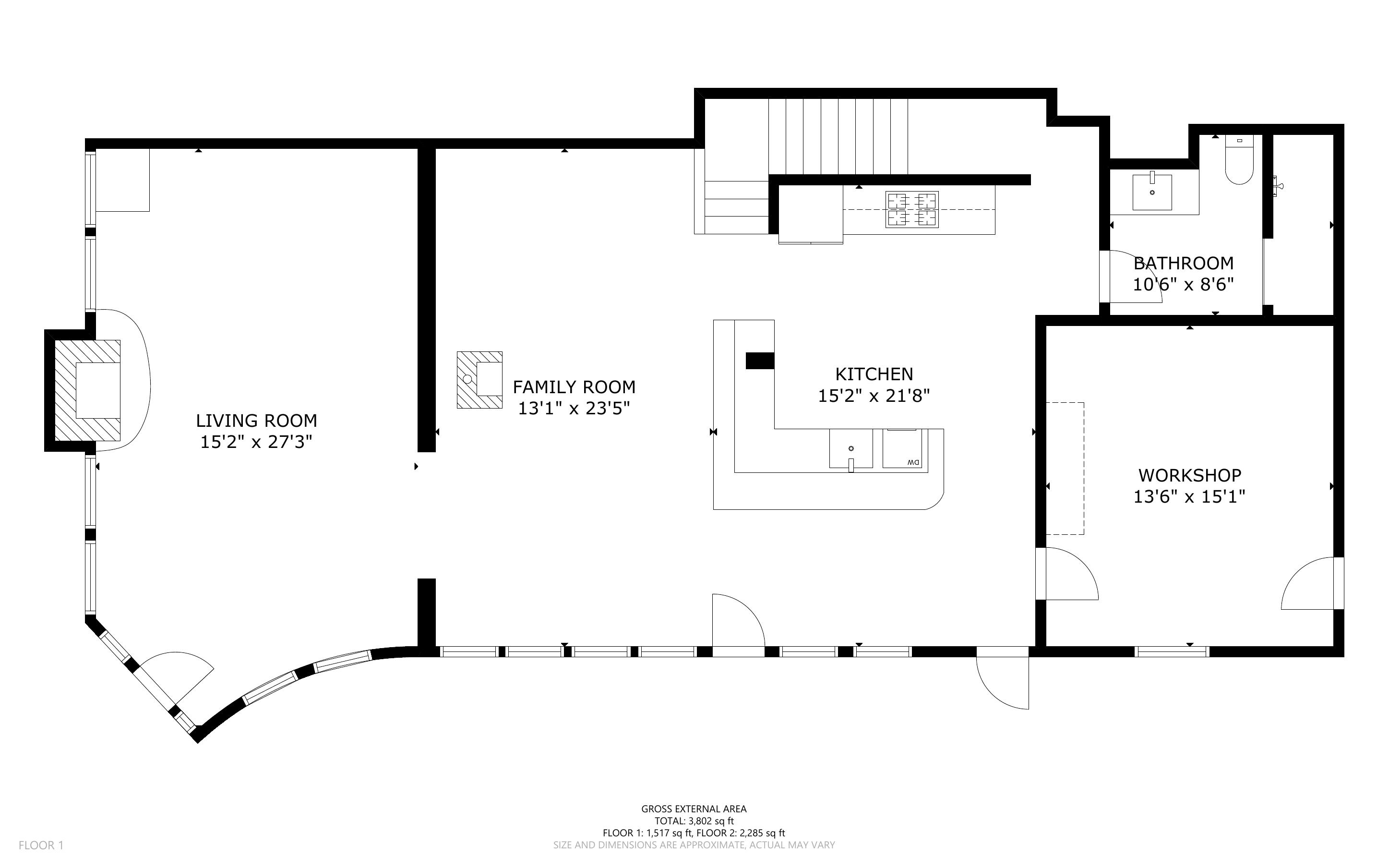
the remaining 5 acres are zoned a-1 and feature a spacious 3,968 square foot home. currently operating as a successful short-term rental, this home could also serve as a clubhouse for the new development or be re-zoned for additional single or multi-family use. the home has been updated with a new well and septic system, and the surrounding acreage has been extensively fire-mitigated, ensuring safety and peace of mind.
located just off i-70, near the el rancho center, this property offers an unbeatable combination of seclusion and accessibility. enjoy the serenity and natural beauty of mountain living, while being just minutes away from restaurants, shopping, and schools. additionally, it’s located at the gateway to colorado’s best ski resorts and outdoor recreation, making it an ideal spot for those seeking the quintessential mountain lifestyle. plus, its easy access to denver and surrounding areas ensures unparalleled convenience.
whether you′re looking to develop a thriving residential community or simply enjoy the expansive acreage, this property presents an incredible opportunity for growth, investment, or personal enjoyment in a highly coveted location.